.

Κάτοψη Β' ορόφου : 146.60 Μ2
.
.
.

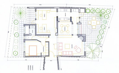
Πάνω αριστερά : Γραφείο ( όπου κάθομαι τρώγοντας φυστίκια πριν συνεχίσω πάλι με τα σχέδια ). Δεξιά : κουζίνα, τραπεζαρία.
Κάτω αριστερα : Λουτρό, υπνοδωμάτιο. Δεξιά : Καθιστικό.
.

Εμβαδόν οικοπέδου : 281.00 Μ2
Προσανατολισμός πρόσοψης : Βορράς
Αυτό εδώ είναι το σπίτι μου. Το οικόπεδο μοιάζει με Τ, μπροστά υπάρχει αυτή η στενή λωρίδα 100. 00 μ2 με μόνο 6 μ. πρόσοψη στο δρόμο και πίσω τα 181.00 μ2 όπου βρίσκεται και το σπίτι, με συνολικό εμβαδόν 115.00 μ2.
Έχω φτιάξει μόνο το μισό ισόγειο το οποίο χρησιμοποιώ για γραφείο και σκεφτόμουν να τελειώσω τον πρώτο - που είναι στα τούβλα - για να μένω εκεί. Ωστόσο δεν έκανα οικογένεια ενώ τα δέντρα που φύτεψα έχουν μεγαλώσει και μου αρέσουν πολύ. Αποφάσισα λοιπόν ότι θα μείνω στο ισόγειο - στο οποίο πρέπει να προσθέσω και χώρους διημέρευσης - κι ότι θα πουλήσω τον τελευταίο όροφο για να τελειώσω τον πρώτο. Έτσι το ξανασχεδίασα προσθέτοντας υπνοδωμάτιο και καθιστικό στην κάτω πλευρά. Με τη νέα αυτή διαρρύθμιση αξιοποιείται όλος ο χώρος, οι κύριοι χώροι βρίσκονται στην πιο φωτεινή πλευρά του σπιτιού, ενώ στο γραφείο θα μπορεί να δουλέψει ακόμα ένας άνθρωπος.
Όπως είναι γνωστό, οι κάτοικοι στην περιοχή μας είναι εύποροι έως πολύ εύποροι κι αυτό σημαίνει ότι προτιμούν να μένουν σε σπίτια πολύ μεγαλύτερα από το δικό μου. Έτσι αποφάσισα ότι θα διαιρέσω τον πρώτο όροφο σε δύο μικρά διαμερίσματα 53 και 56 μ2 αντίστοιχα, νάρθουν να μείνουν νέοι άνθρωποι που δουλεύουν εδώ. Ο δεύτερος μελλοντικός όροφος θα είναι μια ενιαία κατοικία 95.50 τμ.





Δεν υπάρχουν σχόλια:
Δημοσίευση σχολίου